您的位置:乐享家装修网 >装修案例 >邯郸广泰小区

免费装修设计

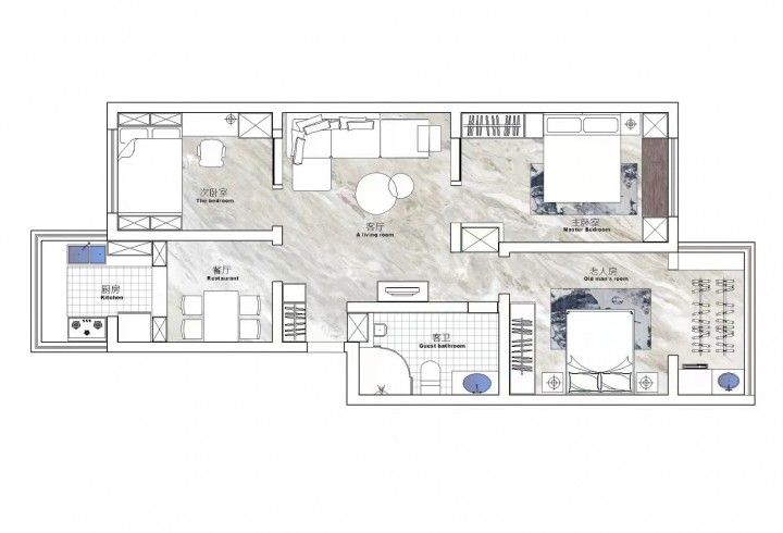
设计理念:首要解决储物空间,通风还有采光的问题。经过改造,储物空间提升了百分之43

户型:  三居

风格:

价格:  10-20万

相关案例

评论(共0条)


验证码 

点击刷新验证码

最新评论